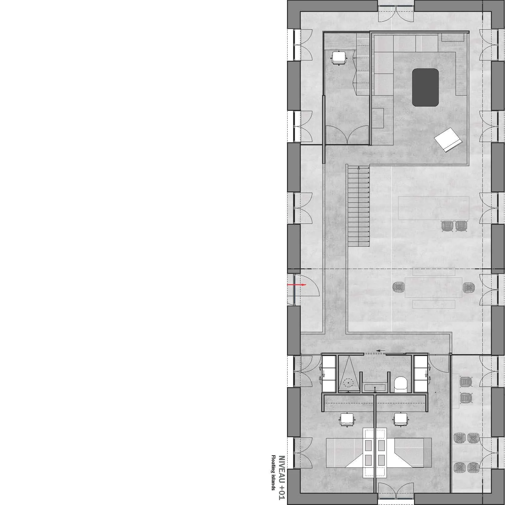
CoHousing: Living Within the Frame

This cohousing concept embraces an industrial aesthetic, rooted in simplicity and raw materials. The entire design originates from a single rectangular volume, creating a bold, structural framework. Exposed elements, clean lines, and open spaces reflect the essence of industrial design, while fostering a sense of community within a shared, dynamic environment.

Previous
Previous

Project Four

Next
Next

Project Two