The Office.
Sustainable and Circular, Durable, Lightweight, Biodegradable, …
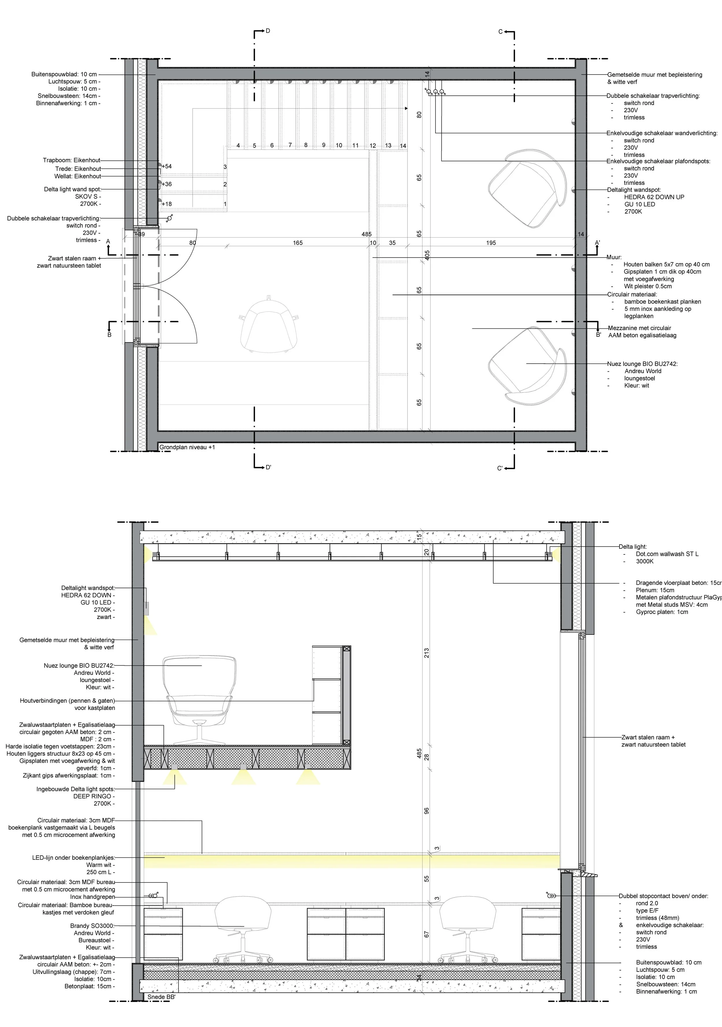
Bamboo.
Inox
Circular and Sustainable, Low Carbon Footprint, High Durability, Resource-Efficient, …
Circular AAM Concrete
Sustainable and Circular, Durable, Lightweight, Biodegradable, …
Bamboo.
Circular and Sustainable, Low Carbon Footprint, High Durability, Resource-Efficient, …
Circular AAM Concrete